Description
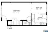
A beautifully maintained brick-exterior townhouse located in the highly desirable Maplewood Village Condominiums. This spacious residence offers 2 bedrooms and 1.5 bathrooms across a thoughtfully designed layout that combines comfort, functionality, and style. The main level features gleaming hardwood floors throughout, creating a warm and inviting atmosphere. The living room and dining room flow seamlessly together, enhanced by abundant natural light streaming through large windows. The updated kitchen is a true highlight, featuring white shaker cabinets, quartz countertops, and stainless-steel appliances perfect for both everyday meals and entertaining. A conveniently located powder room on this level adds to the functionality and ease of hosting guests. Upstairs, you'll find two bedrooms with hardwood floors, each providing plenty of closet space and comfort. The full bathroom is designed with convenience in mind and serves the upper level perfectly. A laundry room is included, offering additional storage and practicality. Beyond the home itself, residents can enjoy access to the beautifully maintained community backyard space, ideal for outdoor gatherings, or relaxation. A deeded parking spot provides secure and hassle-free parking. Perfectly situated, this home is just moments away from Maplewood's community pool, as well as local shops, restaurants, parks, and schools. With easy access to transportation options, commuting to NYC and surrounding areas is a breeze.
-
2BEDS
-
N/AACRES
-
1BATHS
-
11/2 BATHS
School Ratings & Info
Description
A beautifully maintained brick-exterior townhouse located in the highly desirable Maplewood Village Condominiums. This spacious residence offers 2 bedrooms and 1.5 bathrooms across a thoughtfully designed layout that combines comfort, functionality, and style. The main level features gleaming hardwood floors throughout, creating a warm and inviting atmosphere. The living room and dining room flow seamlessly together, enhanced by abundant natural light streaming through large windows. The updated kitchen is a true highlight, featuring white shaker cabinets, quartz countertops, and stainless-steel appliances perfect for both everyday meals and entertaining. A conveniently located powder room on this level adds to the functionality and ease of hosting guests. Upstairs, you'll find two bedrooms with hardwood floors, each providing plenty of closet space and comfort. The full bathroom is designed with convenience in mind and serves the upper level perfectly. A laundry room is included, offering additional storage and practicality. Beyond the home itself, residents can enjoy access to the beautifully maintained community backyard space, ideal for outdoor gatherings, or relaxation. A deeded parking spot provides secure and hassle-free parking. Perfectly situated, this home is just moments away from Maplewood's community pool, as well as local shops, restaurants, parks, and schools. With easy access to transportation options, commuting to NYC and surrounding areas is a breeze.
© 2025 New Jersey Multiple Listing Service. All rights reserved.
IDX information is provided exclusively for consumers' personal, non-commercial use and may not be used for any purpose other than to identify prospective properties consumers may be interested in purchasing. Information is deemed reliable but is not guaranteed accurate by the MLS or Kiliszek Real Estate Experts | EXP Realty.
The data relating to the real estate for sale on this web site comes in part from the Internet Data Exchange Program of the NJMLS. Real estate listings held by brokerage firms other than Kiliszek Real Estate Experts | EXP Realty are marked with the Internet Data Exchange logo and information about them includes the name of the listing brokers. Some properties listed with the participating brokers do not appear on this website at the request of the seller. Listings of brokers that do not participate in Internet Data Exchange do not appear on this website. Data last updated: 2025-12-04T20:16:50.233.