Description
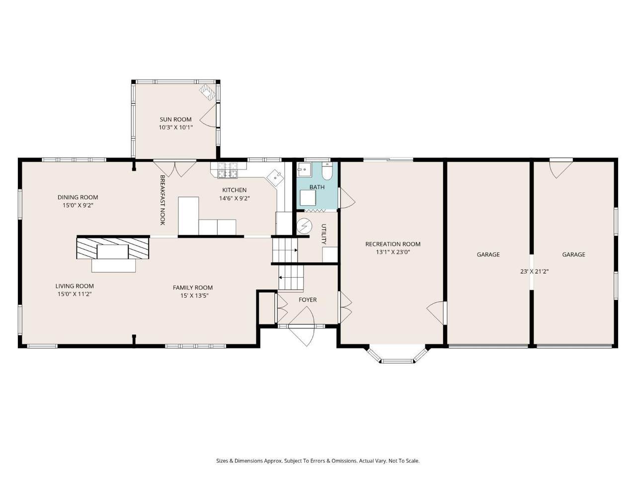
Welcome to this beautifully updated & expanded Split-Level home thoughtfully designed for everyday living & unforgettable gatherings. When you enter the home, you'll notice the open, light-filled living room, complemented by a bonus space ideal for a private library, or quiet retreat perfect for hosting guests or creating your own productivity haven. There is a separate dining room area & kitchen w/breakfast island. The laundry room is attached with an extra living area that opens to the backyard perfect for hosting an outdoor party. The 2022 addition above the garage enhances both space and function, while the unique bedroom layout surrounds a centrally located media room creating a warm hub for connection, movie nights, and daily life. Highlights: 5 bedrooms | 3 full baths. Hardwood floors throughout. Recessed lighting & crown molding. Wood-burning fireplace for cozy evenings. Heated Florida room for year-round enjoyment. Newly painted interior which makes it truly move-in ready. Upgrades: Addition completed in 2022. Master bed floor & upgrade - 2025. New patio & walkway - 2025. Most appliances - 2023. 2 separate stations of Heater/Furnace/AC - one for upper level and one for lower level with separate thermostat for optimal temperature control. Solar panels for energy efficiency. Step outside & unwind to the calming sound of your private waterfall and Koi pond a peaceful backyard oasis perfect for entertaining, celebrations, or quiet reflection. The house is conveniently located near the New Brunswick station, with easy access to major highways. This home is ideal for commuters while offering the comfort of a welcoming neighborhood. Enjoy access to strong local schools, including the respected Charter Public Schools, and blue ribbon private schools all within a short drive. This is more than a home it's a space designed for connection, growth, and lasting memories. You won't be disappointed come experience it for yourself.
-
5BEDS
-
0.17ACRES
-
3BATHS
-
11/2 BATHS
-
2,854SQFT
-
$252$/SQFT
School Ratings & Info
Description
Welcome to this beautifully updated & expanded Split-Level home thoughtfully designed for everyday living & unforgettable gatherings. When you enter the home, you'll notice the open, light-filled living room, complemented by a bonus space ideal for a private library, or quiet retreat perfect for hosting guests or creating your own productivity haven. There is a separate dining room area & kitchen w/breakfast island. The laundry room is attached with an extra living area that opens to the backyard perfect for hosting an outdoor party. The 2022 addition above the garage enhances both space and function, while the unique bedroom layout surrounds a centrally located media room creating a warm hub for connection, movie nights, and daily life. Highlights: 5 bedrooms | 3 full baths. Hardwood floors throughout. Recessed lighting & crown molding. Wood-burning fireplace for cozy evenings. Heated Florida room for year-round enjoyment. Newly painted interior which makes it truly move-in ready. Upgrades: Addition completed in 2022. Master bed floor & upgrade - 2025. New patio & walkway - 2025. Most appliances - 2023. 2 separate stations of Heater/Furnace/AC - one for upper level and one for lower level with separate thermostat for optimal temperature control. Solar panels for energy efficiency. Step outside & unwind to the calming sound of your private waterfall and Koi pond a peaceful backyard oasis perfect for entertaining, celebrations, or quiet reflection. The house is conveniently located near the New Brunswick station, with easy access to major highways. This home is ideal for commuters while offering the comfort of a welcoming neighborhood. Enjoy access to strong local schools, including the respected Charter Public Schools, and blue ribbon private schools all within a short drive. This is more than a home it's a space designed for connection, growth, and lasting memories. You won't be disappointed come experience it for yourself.
The data relating to real estate for sale on this web-site comes in part from the
Internet Listing Display database of the CENTRAL JERSEY MULTIPLE LISTING SYSTEM,
INC. Real estate listings held by brokerage firms other than this site-owner are marked with
the ILD logo. The CENTRAL JERSEY MULTIPLE LISTING SYSTEM, INC does not warrant the
accuracy, quality, reliability, suitability, completeness, usefulness or effectiveness of any
information provided. Copyright 2026, CENTRAL JERSEY MULTIPLE LISTING SYSTEM, INC. All rights
reserved. The CENTRAL JERSEY MULTIPLE LISTING SYSTEM, INC
retains all rights, title and interest in and to its trademarks, service marks and copyrighted
material. The information being provided is for consumers' personal, non-commercial use and may not be used for any purpose other than to identify properties the consumer may be interested in purchasing or renting. Data last updated: 2026-03-11T21:03:11.637.